Efficientamento energetico e ristrutturazione interna

I lavori di efficientamento energetico previsti sono i seguenti: realizzazione di cappotto esterno,

isolamento della soffitta "morta", nuovo impianto di riscaldamento a pavimento, istallazione di nuovo generatore di calore, sostituzione dei serramenti,

istallazione di impianto fotovoltaico in copertura

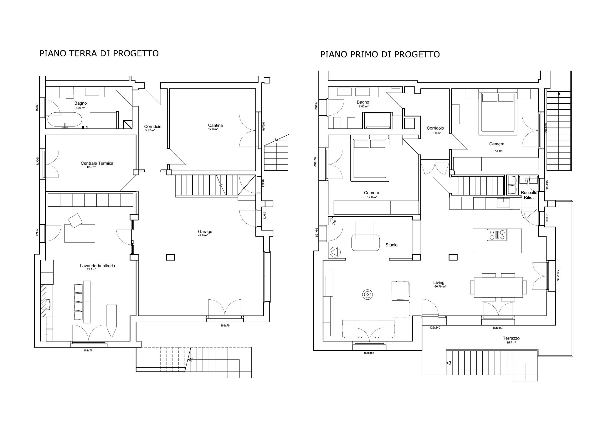
I lavori di ristrutturazione interna hanno apportato modifiche alla distribuzioni della zona giorno oltre alla posa di nuovi pavimenti e rivestimenti. I bagni sono stati completamente ristrutturati con nuovi sanitari e rivestimenti in gress e legno